The Beckford

Plot 8 - Jubilee Gardens, Stainton

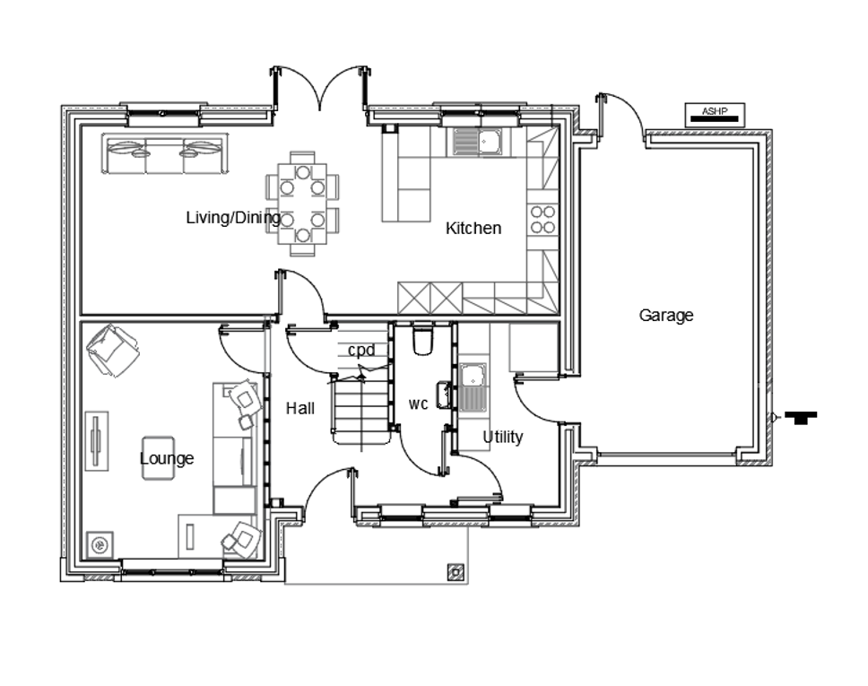
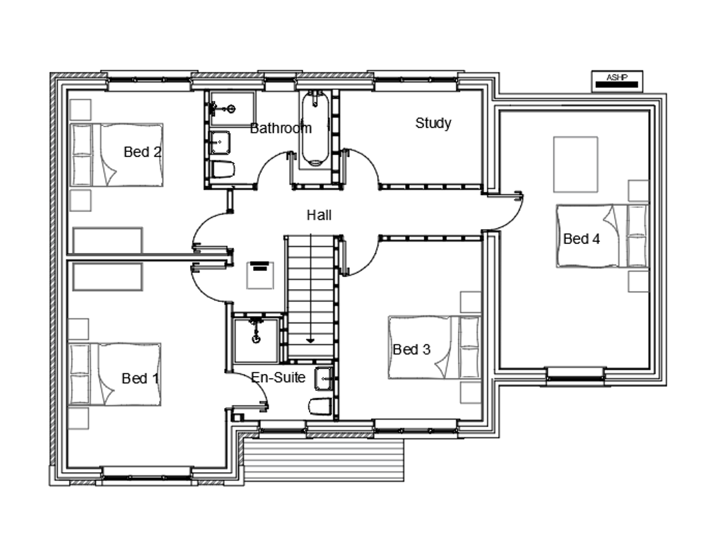
The Beckford features a spacious kitchen/diner and living space, creating a wonderful family room with an additional lounge also incorporated into the ground floor layout. The design of the open plan living space creates a great atmosphere for entertaining. This home comes with four double bedrooms and an additional study room, taking full advantage of the space on offer. A private driveway sits to the front of the home, with an integral garage also included.

All Homes Under Offer!

The Beckford
Guide Price:
 4   2

  • 4/5 Bed detached home
  • Open plan kitchen/diner/living space
  • Generous garden

Sold

View Brochure Register Interest

Register Interest

Please complete your details in the form below to register an interest in one of our property developments.

Floor Plans

Ground Floor

First Floor

Gallery

*for illustrative purposes only